
装修
19关注 | 3966内容
我,米德,给大家拜年啦
祝大家新年快乐感谢A站感谢小帅们找我做设计我会继续在站里搞设计的


共11张各位,富婆的房事我搞定了
上次发的那个一个人住的富婆的房子我搞定了大家来看一眼房子原来长这样设计成这样效果图入户落尘区厨房隐藏式移门客餐厅客餐厅2书房阳台主卧主卧衣柜化妆间洗漱台卫生间和浴室今天就到这里我得给富婆画施工图去了


共13张富婆年都不让过完找我治房事
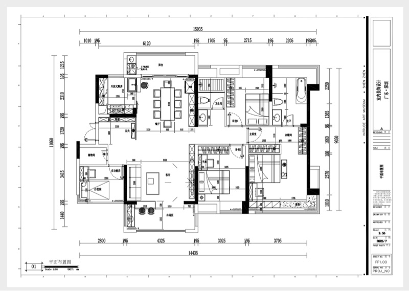
年前的设计项目那个一个人住一百一十平的富婆这是她的第三套房子已经确定了最终方案开始设计效果了年都还没过完就是这个富婆原户型和需求最终确定的设计方案手稿累了效果出来后再分享给Acer们


共4张房事阿婆主说他做不了这个


603次播放 | 03:32这个设计不一定适合你

483次播放 | 01:44房事阿婆主小红薯奇遇记
嘛,大伙看个乐子


共4张房事阿婆主的一天


680次播放 | 05:53米德我啊,又签了一套房事项目
不让我过年咯估计过年还要加班这是个靓女的房子大家看一看这是业主,正规军这是原始户型这是方案一这是方案二这是方案三方案已经确定了你猜猜是哪个方案


共7张2026年第一个治房事的Acer
感谢A站老铁让我赚到元子不过都是站友价的啦大家来看一看这位小帅的豪宅原始图实际测量平面方案效果图


装修中大门对着房间门怎么解决?

1072次播放 | 03:13客户问我卖沙发多久了


31次播放 | 00:102026找我治房事的第一个Acer
感谢A站感谢Acer们不记得这是第几个Acer找我治房事了方案定稿了接下来就是细化设计啦


马哥,你要老婆不要

5.6万次播放 | 07:42把微型风景区搬进我们的客房,大家来了记得买景区门票

5.4万次播放 | 08:27房事阿婆主家的床头柜长什么样?


1039次播放 | 01:32正在加载



